Verkocht: Mieke de Brefstraat 4, 5481 CM Schijndel
€ 419.000,- k.k.
| Type object | Appartement, galerijflat |
|---|---|
| Aanvaarding | In overleg |
| Woonoppervlakte | 81 m² |
|---|---|
| Status | Verkocht |
Beschrijving
Ruim 3-kamerappartement met overdekte parkeerplaats in het hart van Schijndel
Ruim 81 m² appartement op de eerste verdieping van een kleinschalig complex met lift. Royale, lichte living met schuifpui naar zonnige loggia op het zuidwesten, met schitterend uitzicht op het klooster. Praktische hoekkeuken met inbouwapparatuur, twee slaapkamers, nette badkamer met inloopdouche en separaat toilet. Inclusief kelderberging en eigen overdekte parkeerplaats. Gelegen in het hart van Schijndel, nabij alle voorzieningen.
LIGGING
Dit ruime appartement met parkeerplaats ligt midden in het levendige centrum van Schijndel en biedt een fraai uitzicht op het klooster en de kloostertuin. Alle voorzieningen bevinden zich binnen handbereik: winkels, drogisterijen en drie supermarkten liggen op loopafstand. Het dorpsplein met de iconische Glazen Boerderij vormt het sfeervolle hart van Schijndel en biedt een gevarieerde mix van horeca, boetiekjes en regelmatig terugkerende evenementen en weekmarkten. Ook scholen, sportvoorzieningen en groene wandelroutes zijn nabijgelegen. De aansluiting op uitvalswegen is uitstekend: binnen enkele minuten bereikt u de Structuurweg, die toegang biedt tot de snelwegen A2 en A50.
Ruim 81 m² appartement op de eerste verdieping van een kleinschalig complex met lift. Royale, lichte living met schuifpui naar zonnige loggia op het zuidwesten, met schitterend uitzicht op het klooster. Praktische hoekkeuken met inbouwapparatuur, twee slaapkamers, nette badkamer met inloopdouche en separaat toilet. Inclusief kelderberging en eigen overdekte parkeerplaats. Gelegen in het hart van Schijndel, nabij alle voorzieningen.
LIGGING
Dit ruime appartement met parkeerplaats ligt midden in het levendige centrum van Schijndel en biedt een fraai uitzicht op het klooster en de kloostertuin. Alle voorzieningen bevinden zich binnen handbereik: winkels, drogisterijen en drie supermarkten liggen op loopafstand. Het dorpsplein met de iconische Glazen Boerderij vormt het sfeervolle hart van Schijndel en biedt een gevarieerde mix van horeca, boetiekjes en regelmatig terugkerende evenementen en weekmarkten. Ook scholen, sportvoorzieningen en groene wandelroutes zijn nabijgelegen. De aansluiting op uitvalswegen is uitstekend: binnen enkele minuten bereikt u de Structuurweg, die toegang biedt tot de snelwegen A2 en A50.
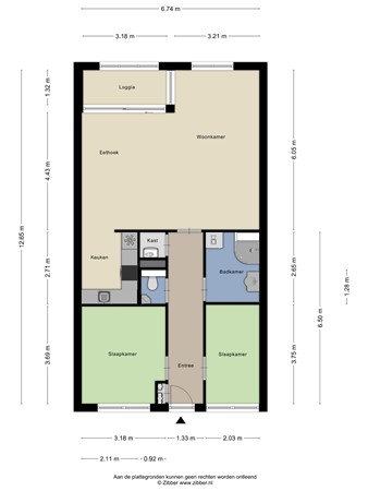
Indeling
Bij de centrale entree van dit kleinschalige appartementencomplex bevinden zich de brievenbussen en de videofoon. Vanuit de verzorgde hal bereikt u via de lift of de trapopgangen zowel de kelder als de twee verdiepingslagen. In de kelder beschikt u over een afgesloten berging met elektra.
Eerste verdieping
Bij binnenkomst in de ruime hal valt direct de praktische en aangename indeling op. Vanuit hier heeft u toegang tot twee comfortabele slaapkamers, een aparte cv-ruimte, een modern separaat toilet, de verzorgde badkamer en de royale living. Beide slaapkamers zijn licht en netjes afgewerkt met gestucte wanden en vloerbedekking, en vormen een prettige basis om naar eigen smaak in te richten. De badkamer is volledig en netjes uitgevoerd, met een wastafelmeubel, designradiator en ruime douche en aansluiting voor het witgoed. Ook het separate toilet met fontein is keurig afgewerkt. In de bergkast vindt u de opstelling van de cv-ketel. De living vormt zonder twijfel het kloppend hart van het appartement. Deze royale, open ruimte biedt volop mogelijkheden voor een comfortabele zit- en eethoek. Dankzij de grote raampartijen en de schuifpui naar de loggia valt er de hele dag door veel natuurlijk licht binnen, wat zorgt voor een aangename en ruimtelijke sfeer. Dit maakt de living een heerlijke plek om te ontspannen, te werken of gasten te ontvangen. De aangrenzende hoekkeuken is praktisch ingedeeld en voorzien van diverse inbouwapparatuur, waaronder een gaskookplaat, afzuigkap, combi-oven, koelkast en vaatwasser. De keuken beschikt over voldoende werk- en opbergruimte en vormt een fijne basis voor kookliefhebbers die de ruimte eventueel naar eigen wens willen moderniseren. Een groot pluspunt is de ruime loggia op het zonnige zuidwesten. Via de schuifpui loopt u zo naar buiten—een ideale plek voor een kop koffie in de ochtend, een boek in de middag of een drankje in de avondzon.
Bijzonderheden
• Bouwjaar: 2001
• Woonoppervlakte: 81 m²
• Inhoud: circa 279 m³
• Goed afgewerkt 3-kamer appartement met parkeerplaats
• Op de 1e verdieping
• Kleinschalig complex voorzien van lift
• Ruime woonkamer
• Inpandige loggia met uitzicht op klooster
• Twee slaapkamers
• Nette badkamer
• In het centrum van Schijndel
• Eigen overdekte parkeerplaats (optioneel kan dus ook zonder)
• Servicekosten: ca. € 198,- per maand (appartement)
• Servicekosten: ca.€ 60,- per maand (parkeerplaats)
• Aanvaarding in overleg
Disclaimer
Deze informatie is met zorg samengesteld. Er wordt echter geen aansprakelijkheid aanvaard voor eventuele onvolledigheden of onjuistheden, noch voor de gevolgen daarvan. Alle maten en oppervlakten zijn indicatief.
• Woonoppervlakte: 81 m²
• Inhoud: circa 279 m³
• Goed afgewerkt 3-kamer appartement met parkeerplaats
• Op de 1e verdieping
• Kleinschalig complex voorzien van lift
• Ruime woonkamer
• Inpandige loggia met uitzicht op klooster
• Twee slaapkamers
• Nette badkamer
• In het centrum van Schijndel
• Eigen overdekte parkeerplaats (optioneel kan dus ook zonder)
• Servicekosten: ca. € 198,- per maand (appartement)
• Servicekosten: ca.€ 60,- per maand (parkeerplaats)
• Aanvaarding in overleg
Disclaimer
Deze informatie is met zorg samengesteld. Er wordt echter geen aansprakelijkheid aanvaard voor eventuele onvolledigheden of onjuistheden, noch voor de gevolgen daarvan. Alle maten en oppervlakten zijn indicatief.
Kenmerken
| Overdracht | |
|---|---|
| Referentienummer | 05395 |
| Vraagprijs | € 419.000,- k.k. |
| Status | Verkocht |
| Aanvaarding | In overleg |
| Aangeboden sinds | Vrijdag 7 november 2025 |
| Laatste wijziging | Donderdag 29 januari 2026 |
| Bouw | |
|---|---|
| Type object | Appartement, galerijflat |
| Woonlaag | 1e woonlaag |
| Soort bouw | Bestaande bouw |
| Toegankelijkheid | Mindervaliden Senioren |
| Bouwperiode | 2001 |
| Dakbedekking | Bitumen |
| Type dak | Platdak |
| Isolatievormen | Volledig geïsoleerd |
| Oppervlaktes en inhoud | |
|---|---|
| Woonoppervlakte | 81 m² |
| Inhoud | 279 m³ |
| Oppervlakte externe bergruimte | 6 m² |
| Oppervlakte gebouwgebonden buitenruimte | 4 m² |
| Indeling | |
|---|---|
| Aantal bouwlagen | 1 |
| Aantal kamers | 3 (waarvan 2 slaapkamers) |
| Aantal badkamers | 1 (en 1 apart toilet) |
| Locatie | |
|---|---|
| Ligging | Aan rustige weg Dichtbij openbaar vervoer In centrum |
| Energieverbruik | |
|---|---|
| Energielabel | A |
| CV ketel | |
|---|---|
| Warmtebron | Gas |
| Bouwjaar | 2001 |
| Combiketel | Ja |
| Eigendom | Eigendom |
| Uitrusting | |
|---|---|
| Aantal parkeerplaatsen | 1 |
| Aantal overdekte parkeerplaatsen | 1 |
| Warm water | CV-ketel |
| Verwarmingssysteem | Centrale verwarming |
| Ventilatie methode | Mechanische ventilatie |
| Parkeergelegenheid | Parkeerkelder |
| Glasvezelaansluiting aanwezig | Ja |
| Heeft schuur/berging | Ja |
| Heeft een schuifpui | Ja |
| Heeft ventilatie | Ja |
| Vereniging van Eigenaren | |
|---|---|
| Ingeschreven bij de KvK | Ja |
| Jaarlijkse vergadering | Ja |
| Periodieke bijdrage | Ja |
| Reservefonds | Ja |
| Meer jaren onderhoudsplan | Ja |
| Onderhoudsverwachting | Ja |
| Opstal verzekering | Ja |
| Kadastrale gegevens | |
|---|---|
| Kadastrale aanduiding | Schijndel G 3734 |
| Omvang | Appartementsrecht of complex |
| Indexnummer | 2 |