Verkocht onder voorbehoud: Conventstraat 48, 5481 CP Schijndel
€ 449.000,- k.k.
| Type object | Appartement, galerijflat |
|---|---|
| Aanvaarding | In overleg |
| Woonoppervlakte | 91,8 m² |
|---|---|
| Status | Verkocht onder voorbehoud |
Beschrijving
Modern 3-kamerappartement met loggia en eigen parkeerplaats
Instapklaar appartement op de eerste verdieping van een kleinschalig complex met lift. Het appartement beschikt over een lichte woonkamer met loggia, een moderne open keuken (2023), twee slaapkamers, een nette badkamer (2019) en een separaat toilet. Inclusief eigen parkeerplaats, berging en energielabel A. De woonoppervlakte bedraagt 92 m² en het appartement ligt gunstig nabij het centrum.
Locatie
Geniet van wonen temidden van rust en groen, terwijl het levendige centrum van Schijndel toch op korte loopafstand ligt. Ontdek gezellige winkels, sfeervolle cafés, restaurants en alle voorzieningen die je dagelijks nodig hebt, gewoon om de hoek. Dankzij de centrale ligging ben je bovendien snel op de uitvalswegen richting Eindhoven, ’s-Hertogenbosch en andere steden in de regio – de perfecte balans tussen natuur, comfort en bereikbaarheid.
Instapklaar appartement op de eerste verdieping van een kleinschalig complex met lift. Het appartement beschikt over een lichte woonkamer met loggia, een moderne open keuken (2023), twee slaapkamers, een nette badkamer (2019) en een separaat toilet. Inclusief eigen parkeerplaats, berging en energielabel A. De woonoppervlakte bedraagt 92 m² en het appartement ligt gunstig nabij het centrum.
Locatie
Geniet van wonen temidden van rust en groen, terwijl het levendige centrum van Schijndel toch op korte loopafstand ligt. Ontdek gezellige winkels, sfeervolle cafés, restaurants en alle voorzieningen die je dagelijks nodig hebt, gewoon om de hoek. Dankzij de centrale ligging ben je bovendien snel op de uitvalswegen richting Eindhoven, ’s-Hertogenbosch en andere steden in de regio – de perfecte balans tussen natuur, comfort en bereikbaarheid.
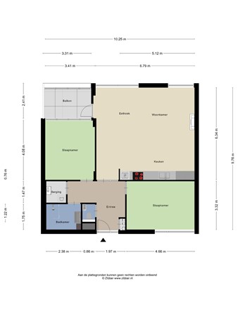
Indeling
Het complex heeft een moderne, stijlvolle entree met videofoon en postvoorzieningen. Vanuit hier zijn zowel de lift als het trappenhuis bereikbaar. Op de begane grond heeft u het gemak van een eigen parkeerplaats, een ruime berging en een centraal geregelde afvalruimte.
Eerste verdieping
Op de eerste verdieping van dit goed onderhouden complex bevindt zich dit fraaie appartement, ideaal gesitueerd nabij de lift. Het appartement is bereikbaar via een ruime galerij en heeft een slimme indeling met hal, woonkamer met open keuken, twee slaapkamers, badkamer, apart toilet en wasruimte.
Deze lichte woonkamer is een fijne leefruimte, voorzien van grote ramen, gestucte wanden en plafonds, een laminaatvloer én airconditioning voor het ultieme comfort. Vanuit de woonkamer loopt u direct door naar de loggia, een ideale plek om rustig te ontspannen of te genieten van de zon. De moderne open keuken (2023) in lengte-opstelling is van alle gemakken voorzien, waaronder een inductiekookplaat, combi-oven, combi-magnetron en koelkast, en biedt volop opbergruimte. Samen vormt dit een eigentijdse en comfortabele leefomgeving. De twee royale slaapkamers zijn licht en sfeervol, met gestucte wanden, spuitwerkplafond en laminaatvloer. De moderne badkamer (2019) is volledig betegeld en uitgerust met een inloopdouche, wastafel met meubel en designradiator. Het separate toilet (2019) beschikt over een zwevend closet en fontein. Daarnaast is er een praktische wasruimte met witgoedaansluiting, bergruimte en plaats voor de cv-combiketel (2018).
Deze lichte woonkamer is een fijne leefruimte, voorzien van grote ramen, gestucte wanden en plafonds, een laminaatvloer én airconditioning voor het ultieme comfort. Vanuit de woonkamer loopt u direct door naar de loggia, een ideale plek om rustig te ontspannen of te genieten van de zon. De moderne open keuken (2023) in lengte-opstelling is van alle gemakken voorzien, waaronder een inductiekookplaat, combi-oven, combi-magnetron en koelkast, en biedt volop opbergruimte. Samen vormt dit een eigentijdse en comfortabele leefomgeving. De twee royale slaapkamers zijn licht en sfeervol, met gestucte wanden, spuitwerkplafond en laminaatvloer. De moderne badkamer (2019) is volledig betegeld en uitgerust met een inloopdouche, wastafel met meubel en designradiator. Het separate toilet (2019) beschikt over een zwevend closet en fontein. Daarnaast is er een praktische wasruimte met witgoedaansluiting, bergruimte en plaats voor de cv-combiketel (2018).
Bijzonderheden
• Bouwjaar: 2001
• Woonoppervlakte: 92 m²
• Inhoud: ca. 303 m³
• Energielabel A
• 3-kamerappartement
• Kleinschalig complex met lift
• VvE-bijdrage: € 210,87 per maand
• Ruime woonkamer met afsluitbare loggia
• Moderne open keuken (2023)
• Moderne badkamer en toilet (2019)
• 2 ruime slaapkamers
• Eigen parkeerplaats en berging
• Gunstige ligging op loopafstand van het centrum
• Aanvaarding in overleg
Disclaimer:
Deze informatie is met de nodige zorgvuldigheid samengesteld. Aan de juistheid en volledigheid kunnen geen rechten worden ontleend. Alle opgegeven maten en oppervlakten zijn indicatief.
• Woonoppervlakte: 92 m²
• Inhoud: ca. 303 m³
• Energielabel A
• 3-kamerappartement
• Kleinschalig complex met lift
• VvE-bijdrage: € 210,87 per maand
• Ruime woonkamer met afsluitbare loggia
• Moderne open keuken (2023)
• Moderne badkamer en toilet (2019)
• 2 ruime slaapkamers
• Eigen parkeerplaats en berging
• Gunstige ligging op loopafstand van het centrum
• Aanvaarding in overleg
Disclaimer:
Deze informatie is met de nodige zorgvuldigheid samengesteld. Aan de juistheid en volledigheid kunnen geen rechten worden ontleend. Alle opgegeven maten en oppervlakten zijn indicatief.
Kenmerken
| Overdracht | |
|---|---|
| Referentienummer | 05389 |
| Vraagprijs | € 449.000,- k.k. |
| Inrichting | Niet gestoffeerd |
| Inrichting | Niet gemeubileerd |
| Status | Verkocht onder voorbehoud |
| Aanvaarding | In overleg |
| Aangeboden sinds | Vrijdag 19 september 2025 |
| Laatste wijziging | Vrijdag 31 oktober 2025 |
| Bouw | |
|---|---|
| Type object | Appartement, galerijflat |
| Woonlaag | 1e woonlaag |
| Soort bouw | Bestaande bouw |
| Toegankelijkheid | Senioren |
| Bouwperiode | 2001 |
| Type dak | Platdak |
| Isolatievormen | Dakisolatie Dubbel glas Muurisolatie Spouwmuren |
| Oppervlaktes en inhoud | |
|---|---|
| Woonoppervlakte | 91,8 m² |
| Inhoud | 303 m³ |
| Oppervlakte externe bergruimte | 6,3 m² |
| Oppervlakte gebouwgebonden buitenruimte | 6,9 m² |
| Indeling | |
|---|---|
| Aantal bouwlagen | 1 |
| Aantal kamers | 3 (waarvan 2 slaapkamers) |
| Aantal badkamers | 1 (en 1 apart toilet) |
| Locatie | |
|---|---|
| Ligging | In centrum Nabij school |
| Energieverbruik | |
|---|---|
| Energielabel | A |
| CV ketel | |
|---|---|
| CV ketel | Nefit HR |
| Warmtebron | Gas |
| Bouwjaar | 2018 |
| Combiketel | Ja |
| Eigendom | Eigendom |
| Uitrusting | |
|---|---|
| Aantal parkeerplaatsen | 1 |
| Warm water | CV-ketel |
| Verwarmingssysteem | Airconditioning Centrale verwarming |
| Ventilatie methode | Mechanische ventilatie |
| Badkamervoorzieningen | Douche Wastafelmeubel |
| Heeft airco | Ja |
| Glasvezelaansluiting aanwezig | Ja |
| Heeft schuur/berging | Ja |
| Heeft zonwering | Ja |
| Heeft ventilatie | Ja |
| Vereniging van Eigenaren | |
|---|---|
| Ingeschreven bij de KvK | Ja |
| Jaarlijkse vergadering | Ja |
| Periodieke bijdrage | Ja |
| Reservefonds | Ja |
| Meer jaren onderhoudsplan | Ja |
| Opstal verzekering | Ja |
| Kadastrale gegevens | |
|---|---|
| Kadastrale aanduiding | Schijndel C 5412 |
| Omvang | Appartementsrecht of complex |
| Eigendomsituatie | Eigen grond |
| Kadastrale aanduiding | Schijndel C 5412 |
| Omvang | Appartementsrecht of complex |
| Eigendomsituatie | Eigen grond |