Beschrijving
Licht en ruim gezinshuis met zonnige tuin en garage in de rustige, kindvriendelijke wijk De Beemd.
Deze sfeervolle woning in de rustige en geliefde wijk De Beemd biedt volop wooncomfort. De L-vormige woonkamer met tuinkamer en schuifpui verbindt prachtig met de zonrijke achtertuin met gazon, borders en terras. De lichte keuken is volledig uitgerust en sluit aan op de praktische bijkeuken. Op de eerste verdieping bevinden zich drie slaapkamers en een complete badkamer, met op zolder extra bergruimte. Een ruime garage, scholen, natuur en het centrum van Schijndel liggen op korte afstand.
Ligging
De woning is gelegen op een rustige en geliefde locatie in de woonwijk De Beemd, een fijne en kindvriendelijke omgeving die geschikt is voor alle leeftijden. In de directe nabijheid bevinden zich een basisschool en een kinderdagverblijf, wat deze locatie bijzonder aantrekkelijk maakt voor gezinnen. Het gezellige centrum van Schijndel, met een gevarieerd aanbod aan winkels, horecagelegenheden en maatschappelijke voorzieningen, is binnen circa vijf minuten per fiets bereikbaar. Ook natuurliefhebbers kunnen hier hun hart ophalen: zowel de Heemtuin De Blekert als het natuurgebied Smaldonk liggen op loopafstand en bieden volop mogelijkheden om te wandelen en te ontspannen in een groene omgeving. Daarnaast is de woning gunstig gesitueerd ten opzichte van diverse uitvalswegen; via de nabijgelegen Structuurweg zijn steden als ’s-Hertogenbosch en Eindhoven snel en eenvoudig bereikbaar.
Indeling
Via de ruime en uitnodigende hal, voorzien van meterkast en trapopgang naar de eerste verdieping, betreedt u de woning. De moderne tegelvloer met vloerverwarming loopt door over de gehele begane grond en draagt bij aan optimaal wooncomfort. De royale L-vormige woonkamer is heerlijk licht dankzij de grote raampartijen en biedt volop ruimte voor zowel een comfortabele zithoek als een ruime eethoek. Aansluitend bevindt zich de tuinkamer, een fijne verlenging van de leefruimte, die dankzij de schuifpui een mooie verbinding vormt met de tuin. De woonkamer staat in open verbinding met de ruime keuken, uitgevoerd in een praktische U-opstelling met veel kastruimte. De keuken is compleet ingericht en voorzien van diverse inbouwapparatuur, waaronder een combi-oven, vaatwasser, inductiekookplaat, afzuigkap en koelkast – ideaal voor kookliefhebbers en gezinnen. Vanuit de keuken heeft u toegang tot de functionele bijkeuken, welke extra bergruimte biedt, is voorzien van een toilet met wandcloset en fontein en toegang geeft tot de verzorgde achtertuin.
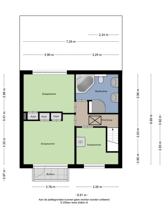
Eerste verdieping
Op de eerste verdieping bevinden zich via de overloop drie slaapkamers en de badkamer. Eén van de slaapkamers wordt momenteel gebruikt als wasruimte, maar kan eenvoudig weer worden ingericht als volwaardige slaapkamer, werk- of hobbyruimte. De twee overige slaapkamers zijn ruim van opzet, prettig licht en voorzien van praktische vaste kasten, wat zorgt voor volop bergruimte.
De ruime en complete badkamer is volledig betegeld en uitgevoerd in een tijdloze stijl. Deze is ingericht met een dubbele wastafel, bidet, douchecabine, wandcloset en een comfortabel ligbad, waardoor het een fijne en functionele ruimte is voor het hele gezin.
Tweede verdieping
Via een vlizotrap is de zolderverdieping bereikbaar. Deze verrassend ruime zolder wordt momenteel gebruikt als bergzolder, maar biedt volop mogelijkheden voor ander gebruik. Tevens bevindt zich hier de cv-installatie (Intergas, 2012).
Tuin
De royale achtertuin, gunstig gelegen op het noordwesten, vormt een heerlijke buitenruimte waar comfort en privacy samenkomen. De tuin is fraai aangelegd met een ruim gazon, diverse borders met volwassen en gevarieerde beplanting en een ruim terras, waar u tot in de avond van de zon kunt genieten. Dankzij de prettige ligging is er altijd wel een zonnig of juist beschut plekje te vinden. Een groot pluspunt is de directe toegang vanuit de tuin tot de ruime garage, wat zorgt voor extra gemak en praktische bergruimte.
Bijzonderheden
• Bouwjaar: 1972
• Woonoppervlakte: 131 m²
• Perceeloppervlakte: 421 m²
• Inhoud: ca. 561 m³
• Energielabel D
• Vrijstaande woning met losstaande garage en oprit
• Ruime woonkamer met vloerverwarming
• Complete keuken en badkamer
• Bergzolder via vlizotrap
• Zonnige achter tuin
• 5 fietsminuten van het centrum
• Gelegen in de gewilde woonwijk “De Beemd”
• Goede bereikbaarheid richting ’s-Hertogenbosch en Eindhoven
• Aanvaarding in overleg
Deze informatie is door ons met de nodige zorgvuldigheid samengesteld. Onzerzijds wordt echter geen enkele aansprakelijkheid aanvaard voor enige onvolledigheid, onjuistheid of anderszins, dan wel de gevolgen daarvan. Alle opgegeven maten en oppervlakten zijn indicatief.
Plattegronden
181494412_1621047_pasto_begane_grond_first_design_20260126_d2c2a1.jpg
181494412_1621047_pasto_eerste_verdiepi_first_design_20260126_d1094f.jpg
181494412_1621047_pasto_zolder_first_design_20260126_f5022b.jpg
181494412_1621047_pasto_garage_first_design_20260126_3bc682.jpg