Beschrijving

Deze ruime eindwoning in de geliefde wijk "De Beemd" biedt 4 slaapkamers, een gesloten keuken en een zonnige achtertuin op het zuidwesten. De woning beschikt over een garage, berging en bijkeuken. Gelegen op loopafstand van scholen en het centrum van Schijndel, met goede bereikbaarheid naar ’s-Hertogenbosch en Eindhoven. De woning heeft potentie en vraagt om enige vernieuwing.

Indeling

De hal, voorzien van een meterkast en modern toilet met wandcloset en fontein, biedt toegang tot de rest van de woning. De lichte tegelvloer met vloerverwarming loopt drempelloos door naar de keuken en woonkamer, wat zorgt voor een open en ruimtelijk gevoel. De royale L-vormige woonkamer is smaakvol afgewerkt met gestucte wanden en plafonds, inclusief sierlijstwerk, en is voorzien van een sfeervolle houtkachel. Via een dubbele deur heeft u toegang tot zowel de serre als de keuken. De gesloten keuken in hoekopstelling is uitgerust met diverse inbouwapparatuur en biedt toegang tot de serre en de tuin. De serre, voorzien van een schuifpui naar de tuin, zorgt voor een naadloze overgang tussen binnen en buiten.

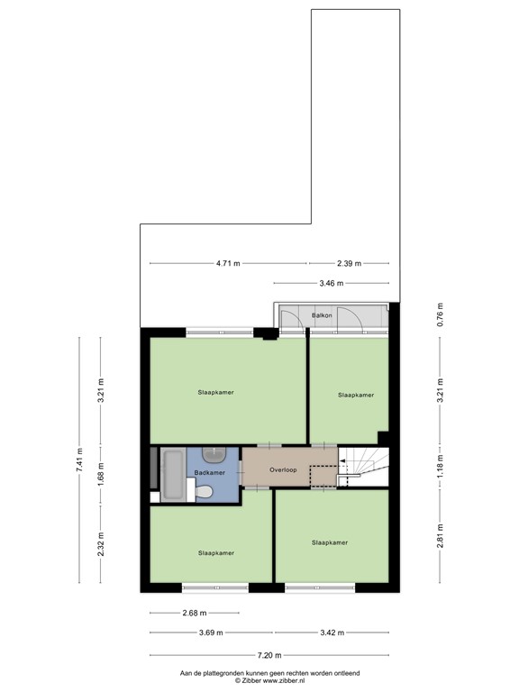
Eerste verdieping

Op de eerste verdieping bevinden zich vier volwaardige slaapkamers, waarvan twee zijn uitgerust met rolluiken voor extra comfort en verduistering. Twee slaapkamers bieden toegang tot het balkon, ideaal voor een moment van rust in de buitenlucht. De badkamer is praktisch ingericht en voorzien van een douche-badcombinatie, een vaste wastafel en een toilet met Sanibroyeur.

Tweede verdieping

De zolder is bereikbaar via een luik en biedt praktische bergruimte. Hier is tevens de opstelplaats voor de geiser.

Tuin

De achtertuin is gelegen op het zonnige zuidwesten, waardoor u tot in de avond kunt genieten van de zon. De tuin heeft potentie om naar eigen wens te worden ingericht en biedt voldoende ruimte voor diverse mogelijkheden. Met een gazon en diverse borders is de tuin via de achterom goed bereikbaar. Direct aan de woning grenst een praktische berging, verdeeld in twee delen: één voor tuingereedschap en het andere als bijkeuken. De bijkeuken is voorzien van de wasmachineaansluitingen en de cv-ketel (Nefit HR, bouwjaar 2019). Achterin de tuin bevindt zich een ruime, vrijstaande garage, die kan dienen als opbergruimte of werkruimte.

Garage:
De ruime garage van circa 24 m² is voorzien van een elektrische sectionale garagedeur, wat zorgt voor eenvoudig gebruik. De garage is via de tuin bereikbaar, wat extra privacy biedt. Dit maakt de garage ideaal voor het stallen van voertuigen, het opslaan van materialen of als werkruimte.

Bijzonderheden

Bijzonderheden:
•	Bouwjaar: 1958
•	Woonoppervlakte: ca. 140 m²
•	Perceeloppervlakte: 254 m²
•	Inhoud: ca. 509 m³
•	Gelegen in de rustige wijk "De Beemd"
•	Energielabel E
•	Uitgebouwde eindwoning
•	Gesloten keuken
•	4 slaapkamers
•	Ruime garage met elektrische sectionale deur
•	Privacy biedende achtertuin op het zuidwesten
•	Woning dient wel wat aandacht (komt uit de verhuur)
•	Op loopafstand van het centrum van Schijndel
•	Aanvaarding in overleg 

Deze informatie is door ons met de nodige zorgvuldigheid samengesteld. Onzerzijds wordt echter geen enkele aansprakelijkheid aanvaard voor enige onvolledigheid, onjuistheid of anderszins, dan wel de gevolgen daarvan. Alle opgegeven maten en oppervlakten zijn indicatief.

Kenmerken