Beschrijving
Sfeervol en instapklaar familiehuis
Deze charmante woning combineert karakteristieke details met modern wooncomfort. De ruime woonkamer met tegelvloer en strakke afwerking loopt naadloos over in de stijlvolle keuken, voorzien van een ruim spoeleiland en diverse inbouwapparatuur. Zowel de woonkamer als de keuken zijn uitgerust met comfortabele vloerverwarming. Via de openslaande deuren bereikt u de zonnige tuin met overkapping – dé plek om te genieten van het buitenleven.
Op de verdieping bevinden zich twee slaapkamers, waarvan twee royaal van formaat, en een complete badkamer met douche, ligbad, bidet en een dubbel wastafelmeubel. Dankzij de aanwezigheid van zonnepanelen en de onderhoudsvriendelijke tuin is dit een woning waar u zonder zorgen kunt intrekken.
Indeling
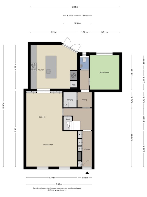
U komt binnen in een lichte hal met een stijlvolle tegelvloer en strak afgewerkte wanden. Hier bevinden zich de meterkast, garderoberuimte, trapopgang, het moderne toilet (wandcloset met fontein), een praktische wasruimte met cv-combiketel én toegang tot de woonkamer. Daarnaast is er een multifunctionele kamer die zich uitstekend leent als extra slaapkamer, werkkamer of speel-/chillruimte. De woonkamer is royaal opgezet en biedt volop ruimte voor een sfeervolle zithoek en een grote eettafel. Via de karakteristieke en-suite deuren bereikt u de moderne leefkeuken: het hart van het huis. De luxe keuken is ingericht met een ruime lengteopstelling, een centraal spoeleiland dat ook dienstdoet als ontbijtplek, en diverse inbouwapparatuur zoals een fornuis met oven en afzuigkap. De tegelvloer met vloerverwarming maakt het geheel compleet. De dubbele tuindeuren geven toegang tot de zonnige tuin, waar u ’s ochtends van een kop koffie, ’s middags van een lunch of ’s avonds van een ontspannen moment kunt genieten.
Eerste verdieping
Op de eerste verdieping bevinden zich twee riante slaapkamers, beide voorzien van strak afgewerkte wanden en comfortabele vloerbedekking. De deels zichtbare houten balken geven de kamers extra karakter. De luxe badkamer is modern ingericht en van alle gemakken voorzien: een ligbad, douche, dubbel wastafelmeubel, wandcloset, bidet en een designradiator. Dankzij het Velux-dakraam is er veel daglicht en natuurlijke ventilatie aanwezig.
Tweede verdieping
Via een vlizotrap bereikt u de bergzolder. Deze ruimte is ideaal voor het opbergen van seizoensspullen of andere zaken die u niet dagelijks nodig heeft.
Tuin
De zonnige achtertuin op het zuidwesten is onderhoudsvriendelijk aangelegd met bestrating, borders en kunstgras. Aan de ruime berging van ca. 20 m² grenst een sfeervolle houten overkapping, waar u heerlijk beschut kunt zitten. Dankzij de gunstige ligging geniet u hier tot in de avonduren van de zon.
Bijzonderheden
-Type: tussenwoning
-Bouwjaar: 1901
-Woonoppervlakte: ca. 152 m²
-Inhoud: ca. 550 m³
-Perceeloppervlakte: ca. 196 m²
-Energielabel C
-Voorzien van 9 zonnepanelen
-Royale woonkamer
-Luxe keuken met spoeleiland
-Complete badkamer
-3 slaapkamers, waarvan één op de begane grond
-Ruime berging met overkapping
-Nabij winkels, scholen en medische voorzieningen
Disclaimer
Deze informatie is met zorg samengesteld. Er wordt echter geen aansprakelijkheid aanvaard voor eventuele onvolledigheden of onjuistheden, noch voor de gevolgen daarvan. Alle maten en oppervlakten zijn indicatief.
Plattegronden
177600724_1582929_bosch_begane_grond_first_design_20251003_3e1dff.jpg
177600724_1582929_bosch_eerste_verdiepi_first_design_20251003_9c001b.jpg
177600724_1582929_bosch_zolder_first_design_20251003_3964c1.jpg
177600724_1582929_bosch_berging_first_design_20251003_a66117.jpg