Beschrijving
Deze luxe twee-onder-een-kapwoning uit 1938 combineert karakter met modern comfort en energielabel A+.
De begane grond biedt een L-vormige woonkamer met gashaard, royale woonkeuken met hoogwaardige inbouwapparatuur en tuinkamer met houtkachel. Slaapkamer met en-suite badkamer grenst aan de tuin. Op de eerste verdieping bevinden zich twee ruime slaapkamers en een moderne badkamer met ligbad en tv. De tweede verdieping telt twee slaapkamers met dakkapel. Fraai aangelegde tuin met buitenkeuken, garage met multifunctionele ruimte en bergzolder. Alle verdiepingen voorzien van vloerverwarming en -koeling. Slechts 5 minuten fietsen naar het centrum, goede verbinding naar ’s-Hertogenbosch en Eindhoven.
Indeling
Via de stijlvolle entree betreedt u deze luxe woning. De hal is voorzien van de meterkast en trapopgang en hoogwaardig afgewerkt met strak gestucte wanden en plafonds. De gevlinderde betonvloer, uitgerust met vloerverwarming en -koeling, loopt over de gehele begane grond en vormt een rustige, luxe basis.
Vanuit de hal bereikt u de L-vormige woonkamer, eveneens afgewerkt met strak stucwerk. De sfeervolle gashaard vormt een warm middelpunt en benadrukt het exclusieve karakter van de ruimte. De woonkamer biedt toegang tot de woonkeuken en de kelder (standplaats water ontharder). Moderne stalen deuren scheiden woonkamer en keuken elegant van elkaar, waardoor openheid en privacy perfect in balans zijn.
De luxe woonkeuken is uitgevoerd in een stijlvolle lengte-opstelling met twee kastenwanden en hoogwaardige inbouwapparatuur, waaronder een cooker, Amerikaanse koelkast, inductiekookplaat, afzuigkap en een vaatwasser op hoogte. Dankzij de lichtstraat valt er extra veel natuurlijk licht binnen, waardoor de keuken een bijzonder lichte en uitnodigende ruimte vormt. Vanuit de keuken heeft u toegang tot het tochtportaal, de tuinkamer en een slaapkamer op de begane grond.
Het tochtportaal biedt toegang tot het moderne toilet, uitgevoerd met wandcloset, urinoir en een wastafel met inbouwkraan in chique rosé goud.
De slaapkamer aan de achterzijde van de woning beschikt over openslaande deuren naar de tuin, waardoor binnen en buiten naadloos met elkaar verbonden zijn. Aangrenzend vindt u de luxe en-suite badkamer, voorzien van een inloopdouche met regendouche, hoogwaardige rosé gouden armaturen en een stijlvol wastafelmeubel in dezelfde afwerking.
Direct naast de keuken ligt de royale tuinkamer, een lichte leefruimte dankzij de lichtstraat. De kamer is voorzien van een houtkachel, glazen schuifpui en vloerverwarming, waardoor comfort en sfeer het hele jaar door samenkomen.
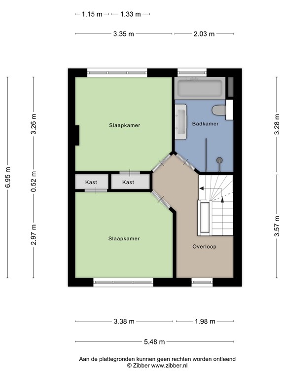
Eerste verdieping
De eerste verdieping heeft een comfortabele indeling met vanaf de overloop toegang tot twee ruime slaapkamers en de badkamer. De gehele verdieping is voorzien van vloerverwarming en -koeling, wat zorgt voor een prettig binnenklimaat in elk seizoen. Beide slaapkamers zijn hoogwaardig afgewerkt met een PVC-vloer in visgraatmotief, strak gestucte wanden en plafonds.
De moderne badkamer is van alle gemakken voorzien en sfeervol uitgevoerd. Hier vindt u een inloopdouche, een ligbad met geïntegreerde tv, een dubbel wastafelmeubel en mechanische afzuiging met vochtsensor. De stijlvolle mat zwarte inbouwkranen geven de ruimte een luxe, eigentijdse uitstraling — een ideale plek om de dag te beginnen of ontspannen af te sluiten.
Tweede verdieping
Op de tweede verdieping bevindt zich een overloop met witgoedaansluiting, van waaruit u toegang heeft tot twee ruime slaapkamers. Beide slaapkamers zijn voorzien van een dakkapel, waarbij de achterste kamer is uitgerust met een screen en een praktische wastafel. De kamers zijn hoogwaardig afgewerkt met een PVC-vloer in visgraatmotief en strak gestucte wanden en plafonds. De gehele verdieping beschikt over vloerverwarming en koeling, wat bijdraagt aan een aangenaam en comfortabel binnenklimaat.
Tuin
De fraai aangelegde achtertuin is een perfecte combinatie van stijl en comfort. Het terras is gedeeltelijk bestraat met hard gebakken klinkers, terwijl andere delen zijn afgewerkt met grind, wat het geheel speels en onderhoudsvriendelijk maakt. Langs de randen vindt u borders met vaste beplanting, die het geheel groen en levendig houden.
Een echte blikvanger is de buitenkeuken, compleet met pizzaoven — ideaal voor gezellige avonden met familie en vrienden. De tuin biedt directe toegang tot de garage en beschikt tevens over een praktische achterom. Een stijlvolle en veelzijdige buitenruimte waar het hele jaar door van het buitenleven genoten kan worden.
Garage
Deze volledig geïsoleerde garage biedt veel meer dan alleen parkeerplek. Hij is verdeeld in twee compartimenten, met een elektrisch segmentdeur naar de straat en een aparte loopdeur naar de tuin. Bovenin bevindt zich een geïsoleerde bergzolder voor al uw spullen.
Daarnaast is er een gezellige multifunctionele ruimte, compleet met klein barretje, koeling, spoelbak en separaat toilet — ideaal als hobbyruimte, mancave, thuiskantoor of plek om met vrienden te ontspannen. Een garage die zowel praktisch als bijzonder veelzijdig is.
Bijzonderheden
- Bouwjaar: 1938
- Woonoppervlakte: 145m²
- Perceeloppervlakte: 266 m²
- Inhoud: ca. 513 m³
- Energielabel A+
- Nagenoeg geheel gerenoveerd
- Twee-onder een kapwoning met losstaande garage
- Alle verdiepingen voorzien van vloerverwarming en koeling
- Luxe woonkeuken
- L-vormige woonkamer met sfeervolle gashaard
- 5 slaapkamer waarvan 1 op de begane grond met badkamer en suite
- luxe sanitaire
- Praktische achterom en directe toegang van tuin naar garage
- Opmerking: tuinkamer is niet opgenomen als woonoppervlakte
- Voorzien van 12 zonnepanelen
- 5 fietsminuten van het centrum
- Goede bereikbaarheid richting ’s-Hertogenbosch en Eindhoven
- Aanvaarding in overleg
Deze informatie is door ons met de nodige zorgvuldigheid samengesteld. Onzerzijds wordt echter geen enkele aansprakelijkheid aanvaard voor enige onvolledigheid, onjuistheid of anderszins, dan wel de gevolgen daarvan. Alle opgegeven maten en oppervlakten zijn indicatief.
Plattegronden
181452250_1621468_bosch_begane_grond_tu_first_design_20260122_3453fc.jpg
181452250_1621468_bosch_begane_grond_first_design_20260122_4d57fc.jpg
181452250_1621468_bosch_eerste_verdiepi_first_design_20260122_30343a.jpg
181452250_1621468_bosch_tweede_verdiepi_first_design_20260122_5bc746.jpg
181452250_1621468_bosch_garage_first_design_20260122_78884e.jpg
181452250_1621468_bosch_zolder_first_design_20260122_87a5ed.jpg
181452250_1621468_bosch_overkapping_first_design_20260122_1f618d.jpg